(802) 922-5597 drawtwa@gmail.com
Timberworks Designs
Timberworksdesigns drawings are a tool for getting accurate costs and pricing from timber framers, contractors, and suppliers. These pre-designed house plans are an affordable way to quickly obtain detailed bids to determine if your design ideas align with your budget.
Panelworks Design
Structural Insulated Panel (SIP) Home Design
Panelworks Design
Panelworks Design Gallery
Structural Insulated Panels (SIPs), sometimes referred to as stress skin panels, are an energy efficient, cost efficient, strong wall and roof enclosure system for a newly constructed home. SIPs have traditionally been used with timber frame construction for decades and are now also being used independently.
SIPs are manufactured in a controlled environment and made of a high r-value expanded polystyrene or urethane core with OSB (oriented strand board) or other exterior sheathing adhered to both sides. The panel can be assembled in any configuration in a matter of days into a wall and roof enclosure system that is stronger than the conventionally framed equivalent. This energy efficient enclosure system is environment friendly because it uses less wood, is fully recyclable, and cuts heating or cooling fuel consumption by 35%.
Panelworks Design offers you several approaches to the design of your SIP building project from pre-designed structural insulated panel house drawing packages to custom SIP home design services. Davis Weigand of Panelworks Design is an architect that has been working with clients to design homes and produce house plan sets using structural insulated panels for over 20 years. See an example structural insulated panel architectural drawing package.
Contact Dave by phone or email him for any questions you may have regarding the design of a structural insulated panel home. For more information regarding Davis Weigand, architect, or for more house design ideas please refer to Timberworks Design. Please refer to our Energy Efficent Design Resource pagefor energy efficiency and resource conservative building methods and ideas.

Gallery 1 is a 25' x 34' knee-wall cape at 1495 square feet, 3 bedroom and 1 1/2 baths - Structural Insulated Panel Home design.

Gallery 2 is a 25' x 34' knee-wall cape with 25' x 12' wing at 1826 square feet, 4 bedroom and 2 1/2 baths - Structural Insulated Panel Home design.

Gallery 3 is a 29' x 36' cape at 1334 square feet, 3 bedroom and 2 bath - Structural Insulated Panel Home design.

Gallery 4 is a 29' x 36' cape at 1904 square feet, 3 bedroom and 2 1/2 bath - Structural Insulated Panel Home design.

Gallery 5 is a 31' x 48' one story at 1400 square feet, 3 bedroom and 1 bath - Structural Insulated Panel Home design.

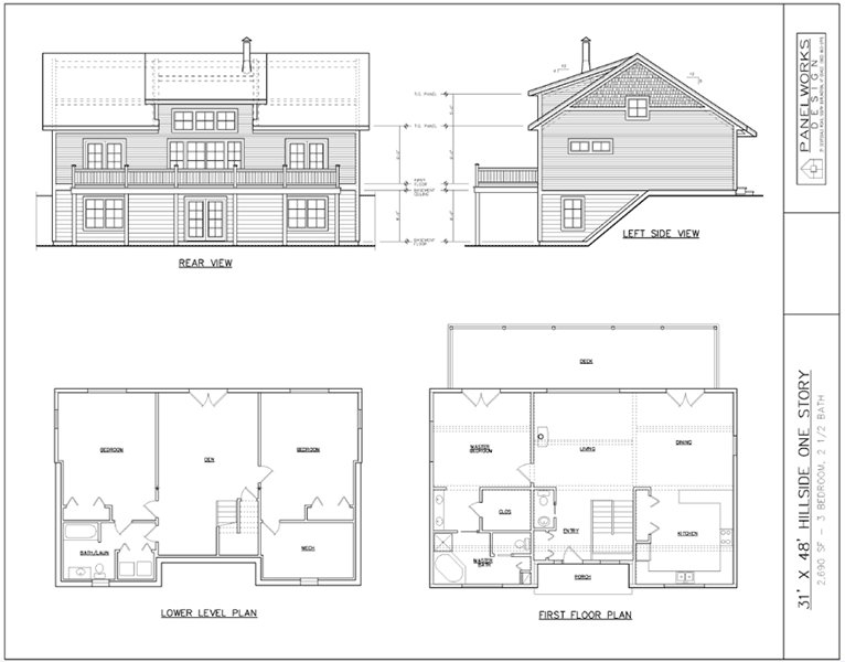
Gallery 6 is a 31' x 48' hillside one story at 2690 square feet, 3 bedroom and 1/2 bath - Structural Insulated Panel Home design.

Gallery 7 is a 31' x 36' two story colonial at 2087 square feet, 3 bedroom and 2 1/2 bath - Structural Insulated Panel Home design.

Gallery 8 is a 31' x 36' two story colonial at 2087 square feet, 3 bedroom and 1/2 bath - Structural Insulated Panel Home design.
Exmple of Structural Insulated Panel (SIP) Archiectural Drawing Package

Structural Insulated Panel Design Package Sheet 1 includes Elevations, Window Schedule, Trim Schedule, Building Heights and Structural Spacing

Structural Insulated Panel Design Package Sheet 2 includes Elevations, Garage profile house profile, building heights, structural spacing and porch railing detail.

Structural Insulated Panel Design Package Sheet 3 includes First and Second Floor Plan with associated architectural notes.

Structural Insulated Panel Design Package Sheet 4 includes First and Second Floor Plan Deck Framing Plan and associtated architectural Notes

Structural Insulated Panel Design Package Sheet 5 includes Foundation Plan and associated architectural foundation notes.

Structural Insulated Panel Design Package Sheet 6 includes the Detail sheet including wall sections, window, ridge and foundation details necessary for construction.